Terrain à bâtir + permis pour 2 habitationsJemappes, 7012, BEL

70000 EUR

Description

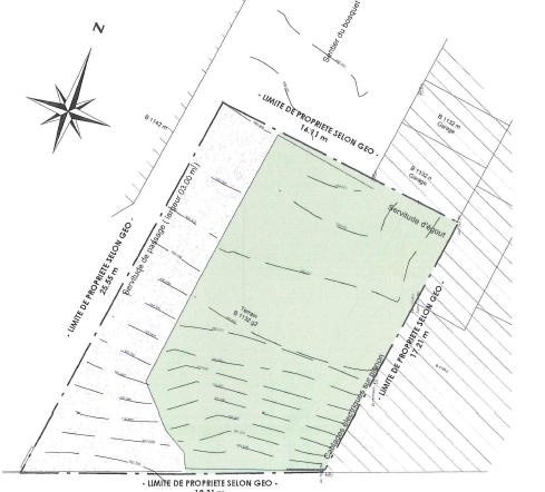
JEMAPPES - Rue Croisette
Terrain à bâtir avec permis octroyé pour deux maisons unifamiliales
Century 21 Masure vous présente une belle opportunité d'investissement ou de construction, idéalement située , à deux pas de toutes commodités, axes autoroutiers et écoles.
Ce terrain offre un cadre agréable et un potentiel intéressant pour un projet résidentiel neuf.
Le permis d'urbanisme pour deux maisons unifamiliales a déjà été accordé, ce qui vous permet de démarrer votre projet sans attendre !

Informations principales :
Référence cadastrale : Section B – n°1132g2
Permis délivré pour : 2 maisons unifamiliales
Situation : Quartier résidentiel, environnement calme et verdoyant
Accès : Facile vers Mons, routes principales et transports en commun

Prix indicatif : 70.000 €
(Sous réserve d'acceptation des propriétaires)

Des infos ? Une visite ? Contactez-nous au 067/21.21.21 ou via mail à info@century21masure.be

Les mesures sont données à titre indicatif et le descriptif n'est en aucun cas contractuel.
Type de bien: Terrain
Année de construction: -
Date: 17-09-2025
Superficie terrain: 346 m²
Surface
--
Chambres
--
Salles de bains
--
Garages
--
Parking
--

Informations

  • Disponibilité : A l'acte
  • Etage : -
  • Copropriété : Non
  • Ascenseur : -
  • Etat du bien : -
  • Charges : -
  • Charges copropriété : -
  • Taxes foncières: -
  • Taxes d'habitation: -
  • Surface du terrain : 346 m²
  • Surface de la terrasse : -
  • Nombre de pièces : -
  • Surface du séjour : -
  • Nombre de salles de bain : -
  • Nombre de salle d'eau :-
  • Nombre de bureaux : -
  • Type de chauffage : Gaz
  • Type de cuisine : Aménagée
  • Orientation : -
  • Garage : -
  • Cave : -

Informations énergétiques

  • Prestation énergétique : -
  • Numéro de certificat PEB : -
  • Total énergie primaire : -
  • Emissions CO2 : -
© 2018 - C21 Masure, votre agence immobilière à Soignies